Wohnen bei der Genossenschaft.

Gewerbefläche zur Miete - zentral gelegen

Informationen

Wohnungsdaten
Zimmer 1
Wohnfläche ca. 46,00 m²
Etage EG
Balkon/Terrasse nicht vorhanden
Anschrift

Ostertorstraße 1,
27283 Verden (Aller)

Kostenaufstellung
Kaltmiete 318,00 €
Betriebskosten 75,00 €
Heizkosten 30,00 €
Gesamtmiete 423,00 €
Genossenschaftsanteile / Kaution 954,00 Euro Kaution

Weitere Details

Verden (Aller)

Ostertorstraße 1
(Gewerbe 500.1.4)

- Gewerbe
- Separate Toilette
- Zentral gelegen 

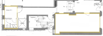
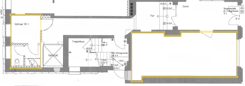
Wir bieten eine attraktive Gewerbeeinheit mit insgesamt 46 m² zur Vermietung an, ideal geeignet für verschiedene Nutzungsmöglichkeiten wie Ladenlokale, Büro oder Atelier. Die Gewerbeeinheit verfügt über ein großes Schaufenster sowie einen kleinen Abstellraum mit Zugang zum WC (separat).

Der Grundriss kann geringfügig abweichen.

Ggf. entfällt auf die Miete noch die MwSt. in gesetzlicher Höhe.

  • Bezugsfrei ab: sofort
  • Heizungsart: Zentralheizung
  • Wesentl. Energieträger: Gas
  • Energieverbrauch für Warmwasser enthalten: nein

Die Gewerbefläche liegt im Herzen von Verden (Aller), einer belebten Fußgängerzone mit hoher Kundenfrequenz. Geschäfte, Cafes und Dienstleister in direkter Umgebung sorgen für eine attraktive Lage mit guter Erreichbarkeit.

Die Betriebs- und Heizkosten sind Vorauszahlungen. 

Bauverein Sulingen, Niederlassung der Volksbank Niedersachsen - Mitte eG

Telefon: 0 42 71 / 93 68-0
E-Mail: info@bauverein-sulingen.de

Haben Sie Fragen oder möchten persönlich beraten werden? Dann rufen Sie uns einfach an.

Gerne senden wir Ihnen auf Anfrage unseren Fragebogen für Wohnungsbewerber zu.


Bitte beachten Sie:

Aus Gründen des Datenschutzes führen wir keine Warteliste mehr.

Eingereichte Unterlagen werden nur für die Dauer des Auswahlverfahrens aufbewahrt.

Nach Eingang Ihrer Anfrage erhalten Sie am nächsten Werktag von uns eine E-Mail mit einem Fragebogen für Wohnungsbewerber als Anhang.
Vor Vereinbarung eines Besichtigungstermins benötigen wir diesen Fragebogen ausgefüllt zurück.
Sollte die E-Mail nicht bei Ihnen ankommen, melden Sie sich bitte telefonisch bei uns.